Подобрать проект
Проект одноэтажного дома с гаражом ATUT 2
- Оригинальный |
- Зеркальный
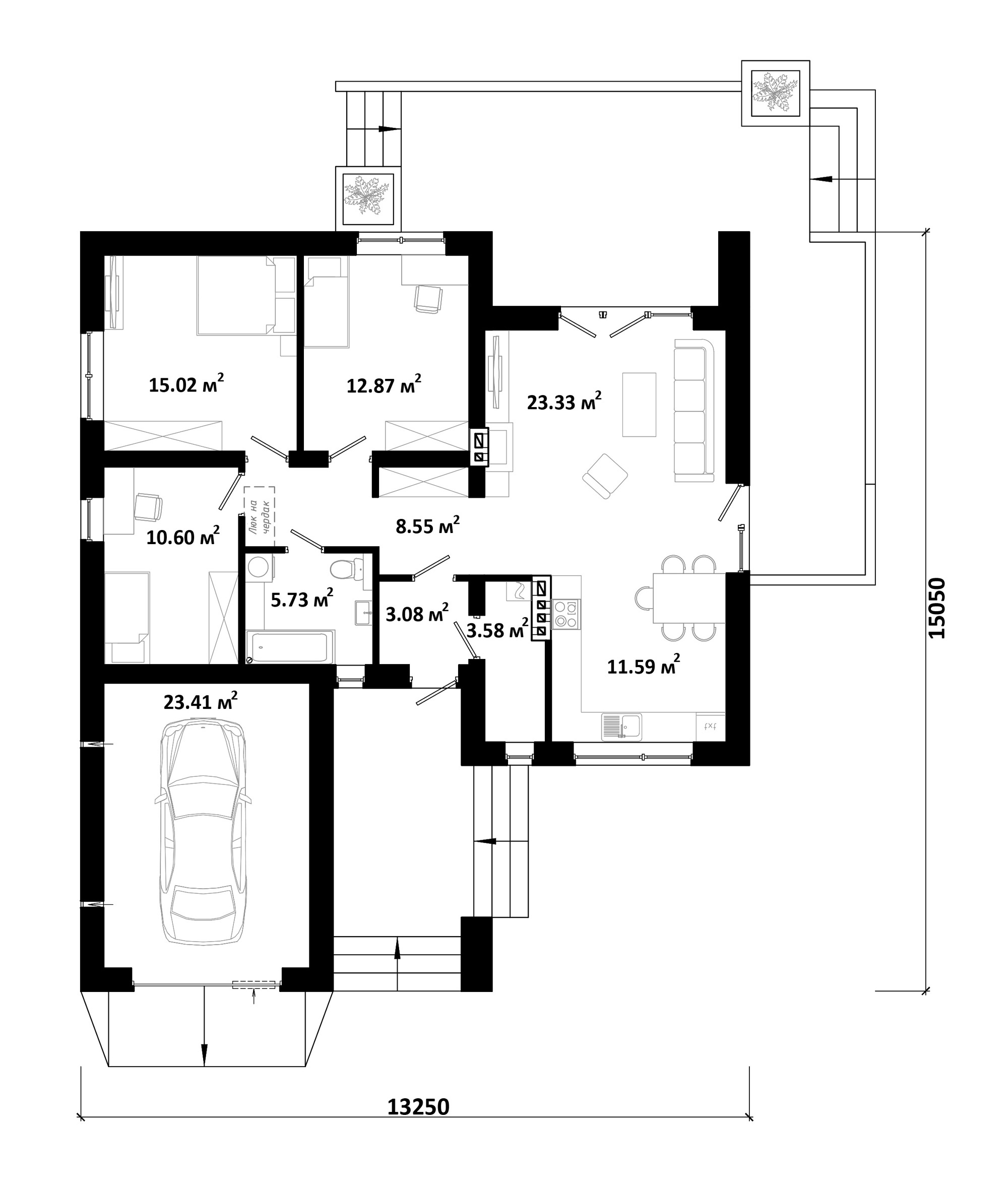
Общая площадь: 117 м
Площадь первого этажа: 94,2 м
Площадь котельной: 3,6 м
Площадь гаража: 23,4 м
Материал стен:
Материал перекрытий: Плиты перекрытия
Материал кровли:
Площадь кровли: 260 м
Тип кровли: 256 м2
Угол кровли (град.): 25
Высота в коньке: 6.95 м
Тип отопления:
Площадь застройки: 210 м
Размеры участка: 16,1 x 24 м
Строительный объем: 650 м
Срок подготовки проекта: 2-3 дня
Строительство: ~ 187 200 BYN
Материалы и работы по следующим этапам:
- подготовка участка (снятие плодородного грунта)
- устройство ленточного фундаментов (без коммуникаций)
- возведение стен и перегородок
- устройство перекрытий
- устройство монолитных поясов и перемычек
- монолитная лестница (для 2-х этажных)
- монтаж стропильной системы
- устройство кровли (ЗАБУДОВА, утепление 20 см)
------------------------------------------------
ВНИМАНИЕ! При изменении типа фундамента и указанных материалов стоимость может измениться.
Стоимость проекта:
Проект одноэтажного дома со встроенным гаражом и шатровой крышей - ATUT-2
Это дом небольшой площади с тремя спальнями, гостиной, кухней гаражом на одно машино-место. Кроме указанных помещений в доме есть ванная комната и помещение мини-котельной. Из гостиной можно выйти на террасу обрамленную цветниками.
Здание выполнено в классической стилистике с применением на фасадах современных отделочные материалов.
Технология строительства одноэтажного дома:
фундамент: свайно-ростверковый или монолитный ленточный
стены дома: керамзитобетонный или газосиликатный блок 400 мм
перекрытия: плиты перекрытия
утепление фасадов: каменная вата 50 мм
утепление кровли: каменная вата 200 мм
кровля: Черепица, Металлочерепица, Мягкая кровля
источник тепла: газовый котёл
Доступна версия проекта с плоской крышей








Думаем, что к указанной стоимости надо добавить 25% — будет похоже на правду.
Прочитать подробности ценообразования можно в разделе строительство домов. Изучайте…
А ещё в этом проекте странно: всего один санузел на 3 спальни.